Gavorrano:
Landsitz mit 9 Hektar Land
Objekt-Nr.: CT-V517


































Preis:
1.200.000 €
Wohnfläche ca.:
430 m²
Grundstück ca.:
90.000 m²
Zimmeranzahl:
8
Gavorrano, La Castellaccia
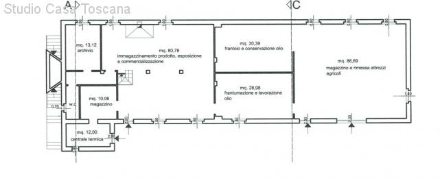
Naturstein-Landhaus mit 430qm Wohnfläche.
Erdgeschoss: 300qm Taverne mit offenem Kamin.
Im ersten Stock befindet sich eine schöne Wohnung (130 qm) mit Zugang sowohl vom Erdgeschoss aus, als auch von außen über einen separaten Eingang. Die Wohnung ist wie folgt aufgeteilt: Wohnraum, Küche, drei Schlafzimmer, zwei Badezimmer und Terrasse mit herrlicher Aussicht auf das Umland und den eigenen exklusiven Grund.
Die Immobilie ist im typischen Toskana-Stil gestaltet mit besonderer Liebe für das Detail, wie eigens geschaffene Nischen, den verwendeten Materialien (Naturstein, Massivholzbalken, Terracotta-Böden…).
Jeder Raum ist mit der Allarmanlage verbunden, außerdem gibt es einen extra Raum mit Wasserspeicher.
Drei beheizbare Schwimmbecken (mit eigenem Heizraum), die per Hand mit kleinen Mosaiksteinen gefliest sind, schmücken den Außenbereich. Eine schöne Terrasse und ein eigener Steinofen vervollständigen den paradiesischen Besitz.
Das Grundstück ist 9 Hektar groß und zählt 1200 Olivenbäume. Preis: Auf Anfrage
Anzahl Schlafzimmer: 3
Anzahl Badezimmer: 2
Keller: voll unterkellert
Als Ferienhaus geeignet: ja
Qualität der Ausstattung: gehoben
Zustand: vollständig renoviert
Die von uns gemachten Informationen beruhen auf Angaben des Verkäufers bzw. der Verkäuferin. Für die Richtigkeit und Vollständigkeit der Angaben kann keine Gewähr bzw. Haftung übernommen werden. Ein Zwischenverkauf und Irrtümer sind vorbehalten.
Das könnte Ihnen auch gefallen
Landhaus mit Panorama und Land



























































