Gabellino:
Antikes Bauernhaus aus dem Jahr 1536 zum Restaurieren
Číslo objektu.: CT-V186








































Cena:
250.000 €
Obytná plocha přibližně.:
300 m2
Pozemek približne:
34.000 m2
Pocet místností:
9
Antikes Bauernhaus aus dem Jahr 1536 zum Restaurieren
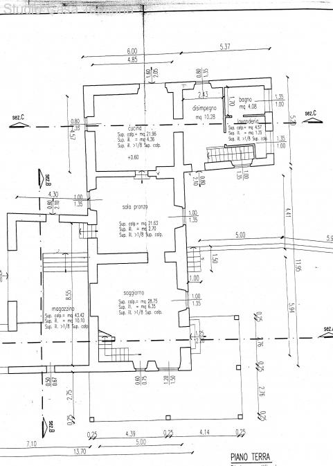
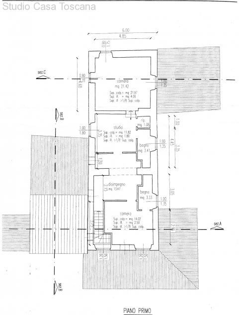
Das bezaubernde alte Bauernhaus aus dem Jahre 1536 bietet 300qm Wohnfläche auf zwei Stockwerken. Das Anwesen ist komplett aus Naturstein und der Großteil der historischen Grundzüge und original Materialen sind vor Ort erhalten geblieben, so dass einer stilgerechten Restauration nichts im Wege steht. Wichtige Elemente, wie das Dach und große Fenster-und Türöffnungen, wurden bereits fachgerecht erneuert. Es liegt bereits auch ein abgesegnetes Bauprojekt vor, das auf Wunsch vom Verkäufer bereitgestellt wird.
GENEHMIGUNG fuer den Bau eines weiteren Gebaeudes von circa 150qm!
Typ domu: Venkovský dům
Počet poschodí: 2
Rok stavby: 1536
Stavební etapa: Dum ve výstavbe
Volné od: sofort
Stav: K renovaci
Die von uns gemachten Informationen beruhen auf Angaben des Verkäufers bzw. der Verkäuferin. Für die Richtigkeit und Vollständigkeit der Angaben kann keine Gewähr bzw. Haftung übernommen werden. Ein Zwischenverkauf und Irrtümer sind vorbehalten.
Také by se vám mohlo líbit


















































