Gabellino:
Antikes Bauernhaus aus dem Jahr 1536 zum Restaurieren
№ объекта: CT-V186








































Цена:
250.000 €
Жилая площадь:
300 кв.м
Земельный участок ок.:
34.000 кв.м
Количество комнат:
9
Antikes Bauernhaus aus dem Jahr 1536 zum Restaurieren
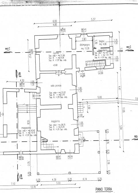
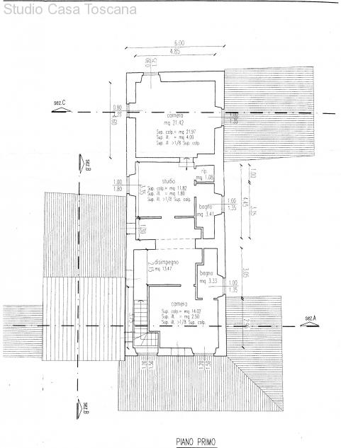
Das bezaubernde alte Bauernhaus aus dem Jahre 1536 bietet 300qm Wohnfläche auf zwei Stockwerken. Das Anwesen ist komplett aus Naturstein und der Großteil der historischen Grundzüge und original Materialen sind vor Ort erhalten geblieben, so dass einer stilgerechten Restauration nichts im Wege steht. Wichtige Elemente, wie das Dach und große Fenster-und Türöffnungen, wurden bereits fachgerecht erneuert. Es liegt bereits auch ein abgesegnetes Bauprojekt vor, das auf Wunsch vom Verkäufer bereitgestellt wird.
GENEHMIGUNG fuer den Bau eines weiteren Gebaeudes von circa 150qm!
Тип дома: Дом в деревне
Количество этажей: 2
Год постройки: 1536
Фаза строительства: В строительстве
Имеющиюйся в распоряжении с: sofort
Состояние: Нуждается в ремонте
Die von uns gemachten Informationen beruhen auf Angaben des Verkäufers bzw. der Verkäuferin. Für die Richtigkeit und Vollständigkeit der Angaben kann keine Gewähr bzw. Haftung übernommen werden. Ein Zwischenverkauf und Irrtümer sind vorbehalten.
Вам также может понравиться
Haus auf dem Land mit 15ha Land, Weinberg und Olivenhain



















































