Gabellino:
Antikes Bauernhaus aus dem Jahr 1536 zum Restaurieren
numeru objektu: CT-V186








































Cena:
250.000 €
Powierzchnia mieszkalna okolo:
300 m2
Dzialka okolo:
34.000 m2
Liczba izb:
9
Antikes Bauernhaus aus dem Jahr 1536 zum Restaurieren
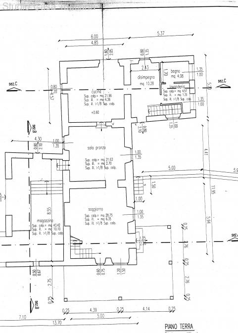
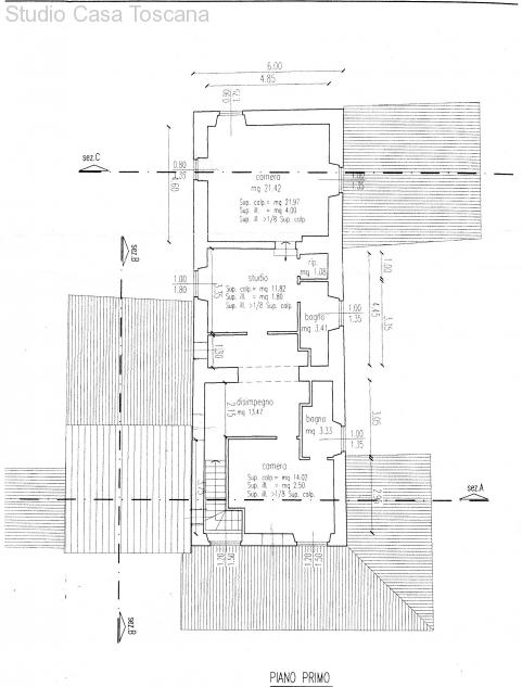
Das bezaubernde alte Bauernhaus aus dem Jahre 1536 bietet 300qm Wohnfläche auf zwei Stockwerken. Das Anwesen ist komplett aus Naturstein und der Großteil der historischen Grundzüge und original Materialen sind vor Ort erhalten geblieben, so dass einer stilgerechten Restauration nichts im Wege steht. Wichtige Elemente, wie das Dach und große Fenster-und Türöffnungen, wurden bereits fachgerecht erneuert. Es liegt bereits auch ein abgesegnetes Bauprojekt vor, das auf Wunsch vom Verkäufer bereitgestellt wird.
GENEHMIGUNG fuer den Bau eines weiteren Gebaeudes von circa 150qm!
typ domu: Dom na wsi
ilosc pieter: 2
Rok budowy: 1536
Faza budowy: Dom w budowie
dostepne od: sofort
Stan: wymagajace remontu
Die von uns gemachten Informationen beruhen auf Angaben des Verkäufers bzw. der Verkäuferin. Für die Richtigkeit und Vollständigkeit der Angaben kann keine Gewähr bzw. Haftung übernommen werden. Ein Zwischenverkauf und Irrtümer sind vorbehalten.
Może Ci się też spodobać
Herrliches Anwesen circa 2km vom Zentrum Cetonas
Haus auf dem Land mit 15ha Land, Weinberg und Olivenhain































































